Program for Strucure course
1. Subject
An introduction to parametric design and the basic environment of Revit (Ribon, Options Bar, Properties, Project Browser, View Control i Status Bar – ),Basics of modeling and placement of “auxiliary elements” (Levels-and Grids)
2. Subject
Definig 0 coordination off The Project – Placement of terrain-KTP from cad, definition of 0 project. Existing terrain(Toposurface), terrain changes according to the project (Graded Region), foundation pit (Building Pad), property boundary (Property Line).
3. Subject
Linking Architectural Model – Connecting Arch. project with Construction. Setting to East, North, Elevation. Installation of Construction Levels and Grids.
4. Subject
Concrete Construction – Load-bearing walls that support the weight of the building (Structural Wall), vertical, load-bearing elements that transfer the weight of the structure above to the foundation (Structural Column).
5. Subject
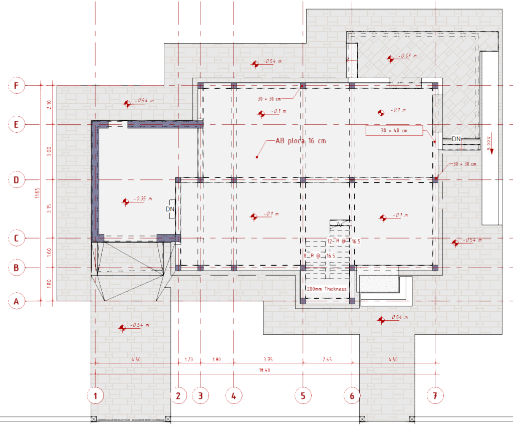
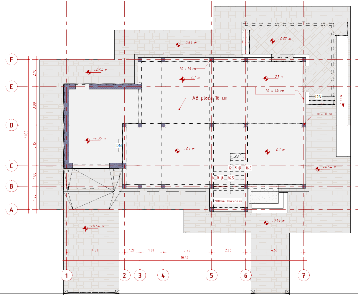
Concrete Construction – Primary load-bearing elements that are modeled in the Structure category and function similarly to real-world beams, carrying vertical loads laterally (Beam) and secondary beam systems (Beam System), floor element that is modeled specifically for the structural framework of a building, including its load-bearing function, materials, and analytical properties (Stuctural Floor).
6. Subject
Concrete Construction – Structural elements that support a building’s load and transfer it to the ground Foundation. Creation of an isometric view of the structure.
7. Subject
Concrete Construction – Stair element that is modeled as a solid, continuous structure Stair, Sloping surface Ramp.
8. Subject
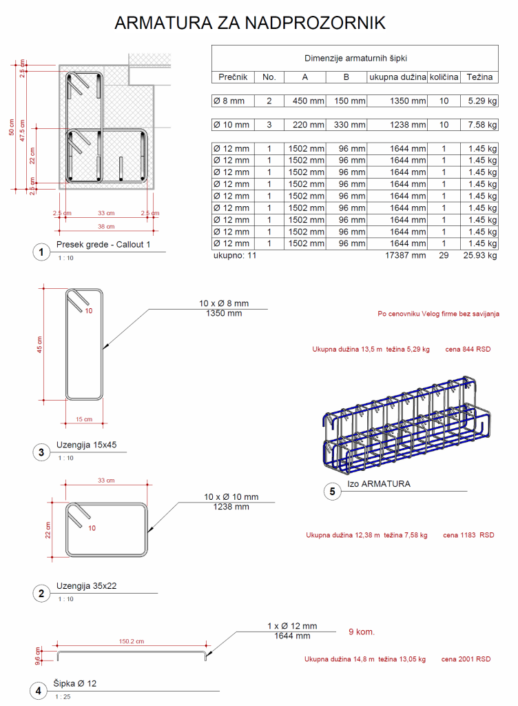
Structural Rebar – Reinforcing bars, stirrups, reinforcing mesh and other settings.
9. Subject
Structural Rebar – Reinforcement: various shapes of bars, stirrups, nets.
10. Subject
Steel – Columns, Beems, Braces, truss systems Trusses, their relationships Connections. Construction of a steel hall.
11. Subject
Steel – Columns, Beems, Braces, truss systems Trusses, their relationships Connections. Construction of a steel hall.
12. Subject
Wood Structural Framing and Columns – Production of classic wooden roof construction.
13. Subject
Views and Sheets – Viewing and creating papers Dimensions and Constraints – Descriptions and quotations, adjustment of visual displays.
14. Subject
Schedules and Tags – Areas, positions and data bases (tables for the estimate and estimate)
15. Subject
Schedules and Tags – Areas, positions and data bases (tables for the estimate and estimate)
16. Subject
Drafting, Legends and Detailing – Creation of legends, 2D schemes and technical drawings and details
17. Subject
Project Phases – Project development in phases.
18. Subject
Collaboration – – Variants of joint project work.





